Triplex semi-commercial avec revenus potentiels intéressants. Il s'agit d'un triplex vraiment bien entretenu par ses propriétaires qui habitent d'ailleurs le superbe loft de l'étage. Le proprio opère la cordonnerie depuis de nombreuses années et désire prendre sa retraite. Il serait possible de louer l'espace de la cordonnerie à un autre type de commerce ou même d'en faire un logement à aires ouvertes.
Les logements sont impeccables pour cet immeuble où la partie âgée aurait dans les 150 ans et la partie récente aurait été construite en 1950 selon la ville de Mirabel. Le garage est récent (2019). Il n'est pas terminé à l'intérieur et il contient beaucoup d'espace de rangement à l'étage.
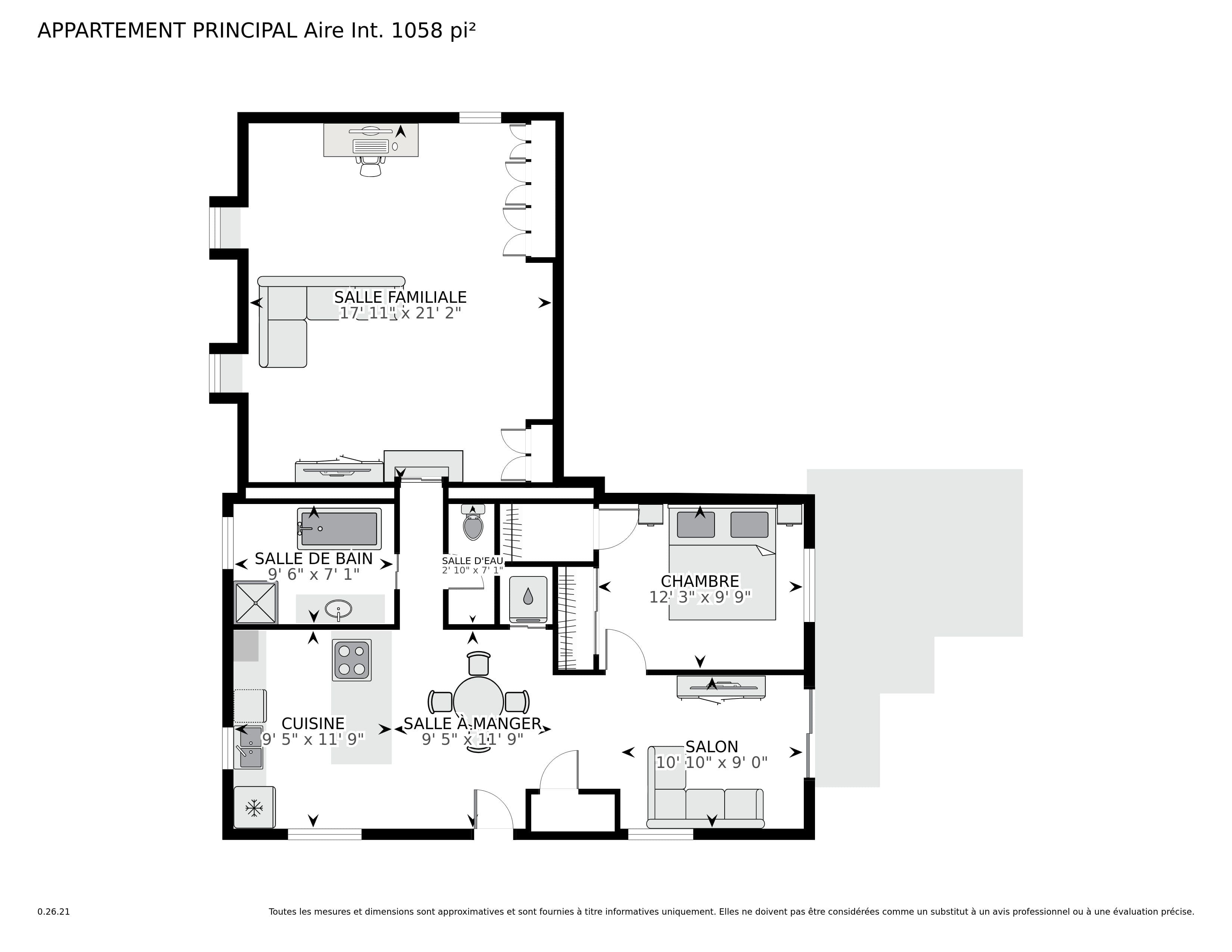
Le grand loft est particulièrement spectaculaire alors qu'on passe du côté moderne où sont les cuisine, salle de bains et chambre au côté ancien dans le grenier du 17 827 alors qu'un salon de 21'7'' sur 17'11'' nous attend.
Ce salon nous offre ce fort joli coin bureau pour télétravailleurs. Je ne sais pas si votre emploi est stressant mais ici vous trouverez le calme et une lumière reposante. Et oui nous sommes dans un espace-travail quasiment thérapeutique. Votre patron n'en reviendra pas de voir votre moral grandement amélioré.
Cet appartement à l'étage est vraiment spacieux. Il fait plus de 1 100 pieds carrés. Il serait facile de séparer le salon de l'espace-travail par un mur pour en faire une chambre à coucher ou un bureau privé si vous aviez besoin d'un espace privé.
Le boudoir pourrait aussi être subdivisé pour en faire une 2ème ou même une 3ème chambre.
Les propriétaires occupent le 17 831 à l'étage, le garage et la cordonnerie où le cordonnier exerce depuis 1996 selon le registraire des entreprises.
Revenus potentiels:
17 827 @ 1 350,00$/mois17 829 @ 1 750,00$/mois 17 831 @ 2 000,00$/mois 17 831'A' - Garage - @ 500,00$/mois Total : 5 600,00$/mois ou 67 200,00$/année
Un pro forma (Exercice de rentabilité) est disponible sur demande.
Visites possibles du lundi au mercredi entre 18H00 et 20H30. Vous devrez fournir une préautorisation et la visite sera confirmée sur réception de cette préautorisation.
Le document suivant: Règlement PIIA secteur villageois - Ville de MIRABEL vous sera remis sur demande. C'est pourquoi la toiture de l'ancienne partie a été refaite en tôle à baguettes.
N.B. Il est possible d'acheter le commerce (Cordonnerie) locataire de ce triplex. Voir l'inscription COMMERCE - No Centris # 18771548 (En vigueur) 17 829, rue Victor -- ST-JANVIER
Il est important de savoir que la taxe n'est pas sur le prix total du triplex, mais bien sur la partie commerciale + ou - 1/3 de 995 000 $ (TPS/TVQ applicable sur la partie commerciale seulement). Il faut vérifier avec votre comptable puisque si vous avez un numéro de taxes (TPS & TVQ) vous pourriez différer ces taxes.
Ce site utilise des services qui utilisent des cookies pour offrir une meilleure expérience et analyser le trafic. Vous pouvez en savoir plus sur les services que nous utilisons sur notre Politique de confidentialité.